目黒区東山一丁目土地
東急東横線/東京メトロ日比谷線「中目黒」駅徒歩約11分 / 東急田園都市線「池尻大橋」駅徒歩約10分
SOLD OUT
東山一丁目1179番12 2022.12.13_page-0001.jpg)
~希少な東山エリア フリープランで設計いただけます~
◇池尻大橋駅、中目黒駅 両駅にアクセス可能な好立地
◇学校、飲食店、病院へのアクセスも良し

- 価格
- 50,000,000円
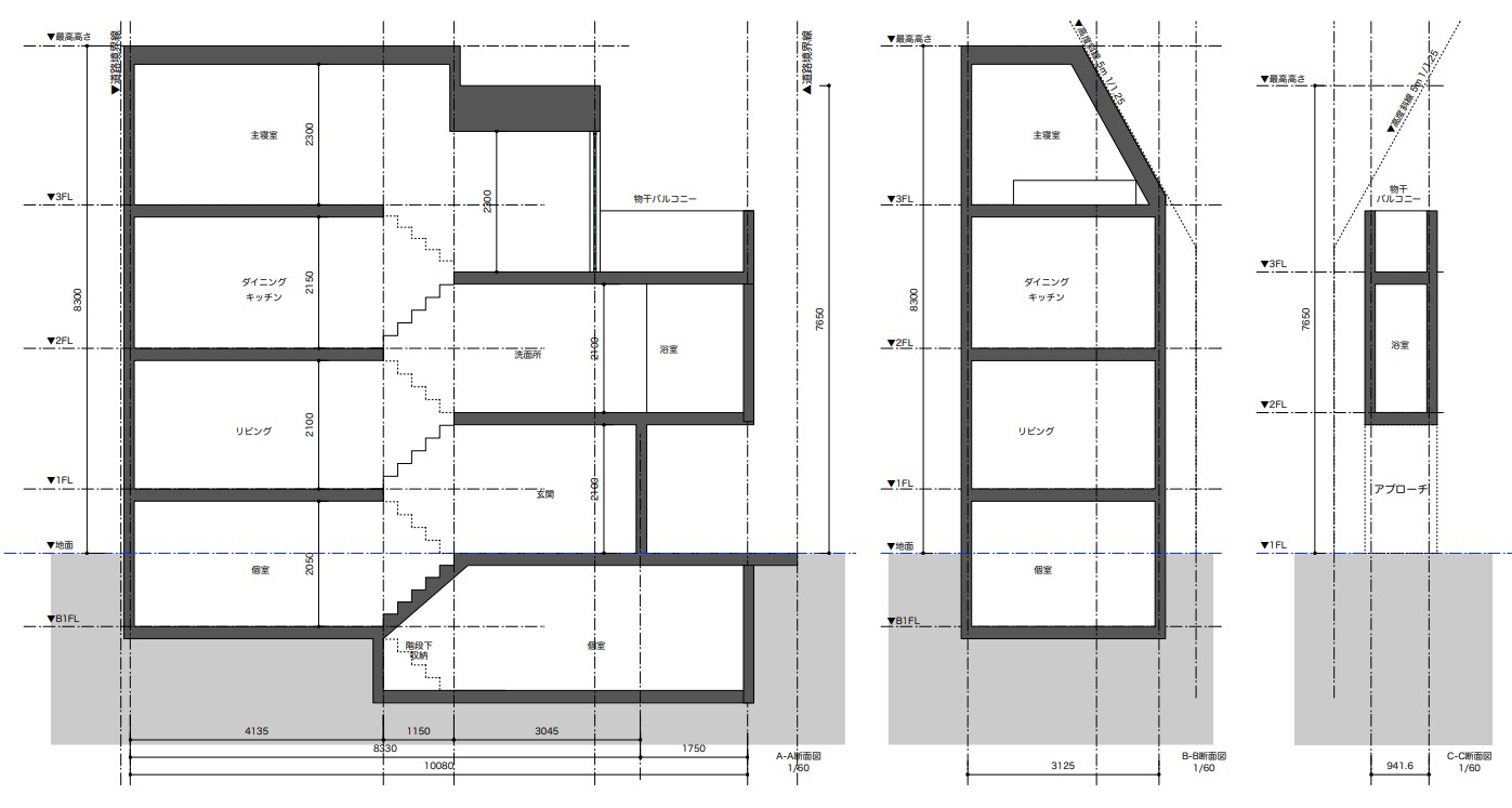
- 面積
- 実測35.98㎡(仮測量) 公簿34.67㎡
- 間取り
- プランについてはご相談ください。
- 最寄駅
- 東急東横線/東京メトロ日比谷線「中目黒」駅徒歩約11分
東急田園都市線「池尻大橋」駅徒歩約10分 - 住所
- 東京都目黒区東山1丁目
- 土地権利
- 所有権
- 設備
- 公営水道 公共下水道 都市ガス
- 備考
- 都市計画:市街化地域
用途地域:第一種住居地域
建ぺい率:指定60%
容積率:指定200%(前面道路幅員より最大180%)
【周辺環境】
・東山小学校 550m
・東山中学校 210m
・あおば病院 180m
・ドン・キホーテ中目黒本店 200m
専任媒介業者1社あり
近くの物件






























